METU JOURNAL OF PURE AND APPLIED SCIENCES

Vol. 22, No. 1, pp. 38—59         April 1989

 

ANALYSIS OF BOX GIRDERS BY THE NODAL SECTION METHOD

S. Tanvir WASTI and Samuel Kinde KASSEGNE

Department of Civil Engineering, M.E.T.U.

Abstract. The structural behavior of box girders may be consid­ered to consist of the action of a series of one-way frames elastically supported by a system of plate beams spanning longitudinally between the supporting diaphragms. The Nodal Section Method, an analytical procedure based on this assumption, is used to determine longitudinal stresses, transverse bending moments and vertical and horizontal displace­ments of joints. In this paper, the method is explained and extended to the analysis of multi-cellular girders under any type of loading and boundary conditions. A computer program called NODSEC has been developed and its accuracy established by comparing the results obtained with the well-known finite element computer program for analysis of cellular structures, called CELL.

I. INTRODUCTION

Box girders have gained wide acceptance in freeway and bridge systems due to their structural efficiency, pleasing aesthetics and economy of construction. Even though research work in the past two or three decades has resulted in rational analysis methods for such structures, there has always been a demand for practical and economical analytical methods, especially for preliminary design. Out of this need, the Nodal Section Method was developed in the early l970’s. The work of A.C. Scordelis [I] formed the initial basis of the method. Subsequently, hockey and Evans [2] gave the method its refined formulation. These two papers have served as starting points for the present investigation.

The study below deals with the extension of the method to multi-­cellular box girders under all types of loading and boundary conditions and the preparation of a computer program called NODS EC. The program was found to give acceptably accurate results while utilizing mini­mal computer time for most common examples of box girder analysis.

 

 II.  FORMULATION OF THE ANALYSIS

 

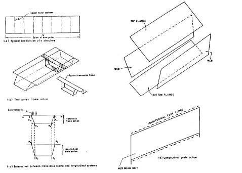
Apart from the usual assumption of homogeneous and linearly elastic material, small deflections, and diaphragms stiff in their own planes, the structural behavior of a box girder may he considered to consist of the action of a series of transverse one-way frames elastically supported by a system of interconnected plate beams spanning longitudinally between the supporting diaphragms. The frames transmit only shears and moments in the transverse direction. This action is termed as the “transverse frame action”. The plate beams, on the other hand, transmit forces only in their plane; this action being termed as the “longitudinal plate action”. Figure 1 shows the idealized behavior.

 

Figure 1. Idealization of structural systems

The analysis is commenced by taking a number of sections known as nodal sections across the length of the box girder. For each slice between nodal sections a transverse frame analysis is carried out. The reactions from this stage of analysis are reversed in direction during the linking analysis. In the longitudinal plate analysis, each plate beam unit is analyzed as a beam subjected to the loads obtained from the linking analysis ensuring compatibility of strain between adjacent plate beam units and equilibrium of joint shear forces.

Transverse Frame Ana1ysis

At this stage of analysis, the transverse frame of each nodal section is analyzed for one way transverse bending action. The analysis may be readily done by the Slope-Deflection method. In the following, the calculations and notations of Rockey and Evans [2] have been preserved.

Considering any plate “p” of nodal section “n” (Fig. 2), the slope-deflection equations are:

Similar equations may be written for all the plates in a nodal section. A matrix representation of the above equations will have the form:

(2)        {M} = [Aql {q} +  {MF}

 

The vector {MF} represents fixed end moments, the vector {q}, the rotation vector of plate edges and {M} the plate edge moments. Making use of the structural behavior of box girders, a simplified ver­sion of equation (2) is obtained. Namely

1) At a joint, the sum of moments should be equal to the applied exter­nal moments. From Figure 3, it can be seen that

M1 + M8 = ME,1

For all joints in a section,

(3)        {M} = {ME}

Where {ME} represents the external moments. A matrix representa­tion of this addition at all joints may be carried out using a matrix designated as the connectivity matrix, [AD]. For example, for the case shown in Figure 3, there are four plates, four joints and eight plate edges so that

 

2) The compatibility requirement of rotations at the joints demands that the edge rotation of each plate meeting at a joint he identical. For example in Figure 3,

q1 = q8 = b1

The connectivity matrix [AD] may conveniently be used here to enforce the requirement:

(6)        {q} =    [AD]T {b}

Once the vector {b} is determined, equation (6) gives the plate edge rotations. Back substitution into equation (2) gives the edge mo­ments. The reactions acting normal to the plates can he computed in terms of transverse plate edge moments using the equations of statics.

(8a)      RA,p = ( MA+ MB)/Sp + RFA,p

 (8b)      RB,P = — ( MA+ MB)/Sp + RFB,P

In matrix form,

 (9)        {R} = [AH] (M} + {RF}

The vertical and horizontal components of these normal reactions for each plate may then he obtained by simple resolution. The total vertical and horizontal reactions at each joint are determined as;

 

Horizontal joint reactions {Rz} = [AD] {Rze}

(10)      Vertical joint reactions     {Ry} = [AD] {Rye}

 

The transverse frame analysis is repeated for all nodal sections except those coinciding with a diaphragm.

Linking Analysis

In this stage of the analysis, the joint reactions determined from transverse frame analysis are applied on to the plate system with re­versed directions. It must he noted that the reactions are resolved in such a way that their components act in the plane of the plate systems.

Longitudinal Plate Analysis

The plate beam units are assumed to have zero flexural stiffness normal to their own plane. As a result they carry the loads obtained from the linking analysis by beam action only.

A free body diagram of a portion of a typical plate is shown in Figure 4 with all the quantities indicated acting iii a positive direc­tion.

NA,V, N1,2 . . . Nr,r+1 are joint shear forces normal to the cut sec­tion. PM is the bending moment at the section. From Figure 4,

Using elementary beam theory, the longitudinal bending stresses can be determined once the forces acting on the section are known.

 

For the simple case of a plate beam unit forming part of a non-prismatic box girder and containing only one plate, the expression for stresses becomes:

 

The stresses acting at the edges are resolved along the edges of the plate unit before equilibrium and compatibility between this and ad­jacent plates can be considered. For example, the stress along the plate beam unit ‘p’ at nodal section “n” is as given below (Fig. 5).

Using equations (12) and (13), a relationship between stresses, (s} (and hence strains), joint shear forces, shear force intensities IU} together with the bending moment {M} may be established. In matrix form,

(14)            {e} = [SN] {Ne} + {M0} — [SU] {Ue}

A simplified form of the above expression is sought by satisfying compatibility of strains between adjacent plate units and equilibrium of joint shear forces. At a joint between adjacent plate units, the strains along the joint must satisfy compatibility.

For example from Figure 3,

e8 + e1 = 0

For the complete section, this condition can be performed using a modified form            of the connectivity matrix [AD'].

(15a)    {Se} = 0 or
(15b)    {Se} = [AD'] {e} — 0

From the condition of equilibrium of joint shear forces at a joint between two plate units, one more relation is obtained.

For example,

N6 = N7 = N4 (Fig. 3)

Once again employing the modified connectivity matrix,

(16)      {Ne} = [AD']T {N}

Similarly for the shear force intensities, the following may be writ­ten:

(17)      {Ue} = [AD']T {U}

Equations (17), (16) and (15) are substituted into equation (14) to give

(18)      [AD] [SN] [AD']T {N} + [AD'](M0} - [AD']] [SU] [AD']T{U} = 0 

Let [DNn] = [AD'] [SN] [AD']T and [DUn] = [AD'] [SU] [AD']T

(19)      [DNn] {Nn} + {DOn} - [DUn] {Un} = 0

The suffix n shows that the terms relate to the typical nodal section n.

In equation (19), there are two unknowns namely, the vectors {Nn} and {Un} which represent the joint shear force and tile intensity of this force at each joint of each nodal section. One more relationship between these vectors is required to solve the above equation. Noting that, for elemental length, shear force intensity is the first derivative of the joint shear force and that the joint shear force has a parabolic variation along the span of the box girder, a Lagrangian interpolation scheme is used to arrive at the following expression.

Once the vector {N} is known, equation (16) gives the shear force at the edges of the individual plates in all the nodal sections. Equation (12) gives the longitudinal stresses. The calculation of deflection follows from the knowledge of normal beam theory.

The Nodal Section analysis is complete at this stage for the no—sway case. The quantities obtained from this analysis are:

i)          The transverse bending moments at the plate edges and at any required position across the width of each plate.

ii)         The longitudinal bending stresses at the plate edges and at any required position across the width of each plate.

iii)        The vertical and horizontal displacement of each joint.

Sway Correction Procedure

In the no—sway analysis, it was assumed that the one—way slabs are rigidly supported at the longitudinal joints and a transverse frame analysis was carried out for this case. On the other hand, during tile longitudinal plate analysis, the joints were allowed to deflect. This obviously introduces incompatibilities between the deflections of the two systems.

As a result, a sway correction procedure has to be employed to eli­minate these incompatibilities. An iterative technique is employed and the investigations of K.C. Hockey and H.R. Evans [2] have shown that this technique converges in all cases with its rate of convergence depend­ing on tile form of tile box girder. The steps to be followed in this procedure are explained in the sample problem solved in Section IV.

Special Considerations For Point Loads

The one—way slab action during transverse frame analysis is valid as long as the deck plate bends into an approximately cylindrical surface This happens when the loading has a reasonably uniform distribution along the span of the box girder and when ~he length to width ratio of the span is more than 3. However, in the case of point loads, the plate bends both ways significantly thereby introducing twisting and longi­tudinal deformations which in turn produce longitudinal and transverse stresses. To overcome this difficulty, Rockey and Evans [2] suggested the use of plate bending analysis, preferably by the finite element method, to determine tile fixed end moments and reactions which are entered as external loads with reversed directions.

However, the great saving in computer time and storage space achieved l)y the Nodal Section method is lost while using the finite element plate bending programs. In addition, the fact that truck loads in most design specifications are given as patch and point loads necessitates the use of an alternative to finite element plate bending programs.

It is suggested that Fourier series representation of such loads satis­fies the requirement of a reasonably uniform distribution along the span. A number of box girders subjected to point loads acting at different locations on the deck were analyzed using the Fourier series representation. Good agreement was obtained with the results from the program CELL [4], as shown in Table 1.

 

III.       COMPUTER PROGRAM AND DISCUSSION OF RESULTS

A computer program named NODSEC has been written for main frame and micro computer systems in the FORTRAN IV language. The flow chart for this program is given in Fig. 8.

The program is capable of handling box girders of various loading, boundary conditions and geometry of cross—section. In general multi-cellular prismatic or non—prismatic simply supported box girders of rectangular or trapezoidal cross section, with or without side cantilevers under all types of loading can be handled.

At the present stage, the program cannot handle skew box girders and boxes containing deflecting internal diaphragms.

A number of sample problems with different loading, boundary conditions and geometry of cross-section were solved and the results compared with the well known finite element computer program named “CELL” [4]. The accuracy of the program NODSEC has been established by the very close agreement between the results obtained from the two programs.

 

IV. SOLVED EXAMPLES

 

A number of box girders with different geometry of cross section and loading conditions were analyzed by the program NODSEC. For all concrete box girders, E=2x104 MPa, n=O.15 and for steel box girders E=2x105 MPa, n=O.30. A brief summary of the results and compari­sons is presented in Tables 1, 2 and 3 [3].

 

 

 

 

Manual Solution For Typical Box Girder

 

The following example illustrates the use of the Nodal Section method for the analysis of box girders by hand calculation. Numerical values are given only for the important quantities.

The unit used for force is kN and for length, meter.

 Dimensions and loading: Simple span L = 40 in. plate thickness, t = 0.45 m (uniform), E=2x107 kN/ in2. The loading is a line load of 10 kN/m.

 

  

 

  

 

Since the correction factors for both horizontal and vertical incompatibilities are the same, the sway correction procedure can he stopped here. More details of this procedure are given in reference L3 1. The final results are obtained by superimposing the no-sway and sway analysis results in the above proportions.

 

V. DISCUSSION

 

As shown in Tables 1, 2 and 3, good agreement is observed between results obtained by NODSEC and CELL. Considering the immense saving in computer time, as shown in Table 2, the agreement obtained between the two programs is remarkable. As the number of cells in a box girder is increased, the accuracy of NODSEC is observed to decrease slightly. However, for design purposes, the values are always acceptable.

 

VI. CONCLUSIONS

 

An approximate and very versatile method has been explained and further extended to cover all practical cases. Longitudinal bending stresses, transverse moments and vertical and horizontal deflections of joints can be determined. The advantages of the Nodal Section method may be enumerated as follows.

 

1)         Unlike most other methods, it is flexible to a remarkable degree. There is no restriction on the geometry of time box girder, and non-prismatic box girders that are difficult to analyze by conventional programs can be solved easily by the program NODSEC.

2) In many simple cases a manual solution using the Nodal Section method is feasible.

3) The computer solution using this method needs much less time and memory requirement. Data preparation and interpretation of result’; are simple. Computer systems of modest storage and memory capabilities can be used for the program.

 

NOTATIONS

           

A, B etc                                                                                                         plate edge labels

M                                                                                                 transverse bending moment

MF                                                                                                           fixed end moments

HF                                                                                                            fixed end reactions

N                                                                                               longitudinal edge shear force

Sp                                                                                                                        plate width

b                                                                                                 joint rotation, incompatibility

m                                                                                        factor for removing incompatibility

tp                                                                                                                    plate thickness

U                                                                                                                     shear intensity

s                                                                                                    longitudinal bending stress

D                                                                                                             sway displacements

a                                                                                                                          taper angle

e                                                                                                                longitudinal strain

q                                                                                                          rotation of plate edges

REFERENCES

[1]        SCORDELIS, A.C., “Matrix Formulation of Folded Plate Equations”, ASCE Journal of the Structural Division, Proceedings Paper 2617, p. 579—600, (1960).

[2] ROCKEY, K.C., and EVANS, H.R., “The Nodal Section Method for the Analysis of Box Girders”, IABSE, Vol. 35—1, p. 185—215, (1972).

[3] KASSEGNE, S. K., “Analysis of Box Girders By the Nodal Section Method”, M. Sc., Thesis, Middle East Technical University, Ankara, Turkey, (1987).

[4] WILLAM, K.J., and SCORDELIS, A.C., “Compute; Program for Cellular Structures of Arbitrary Plan Geometry”, Report No. SESM, 70—10, Dept. of Civil Engineering, University of California, Berkeley, California, (1970).

 

Received March 16, 1988.

Civil Engineering Department, Middle East Technical University, 06531, Ankara, TURKEY